3.1 Remap X,Y,Z coordinates to RGB

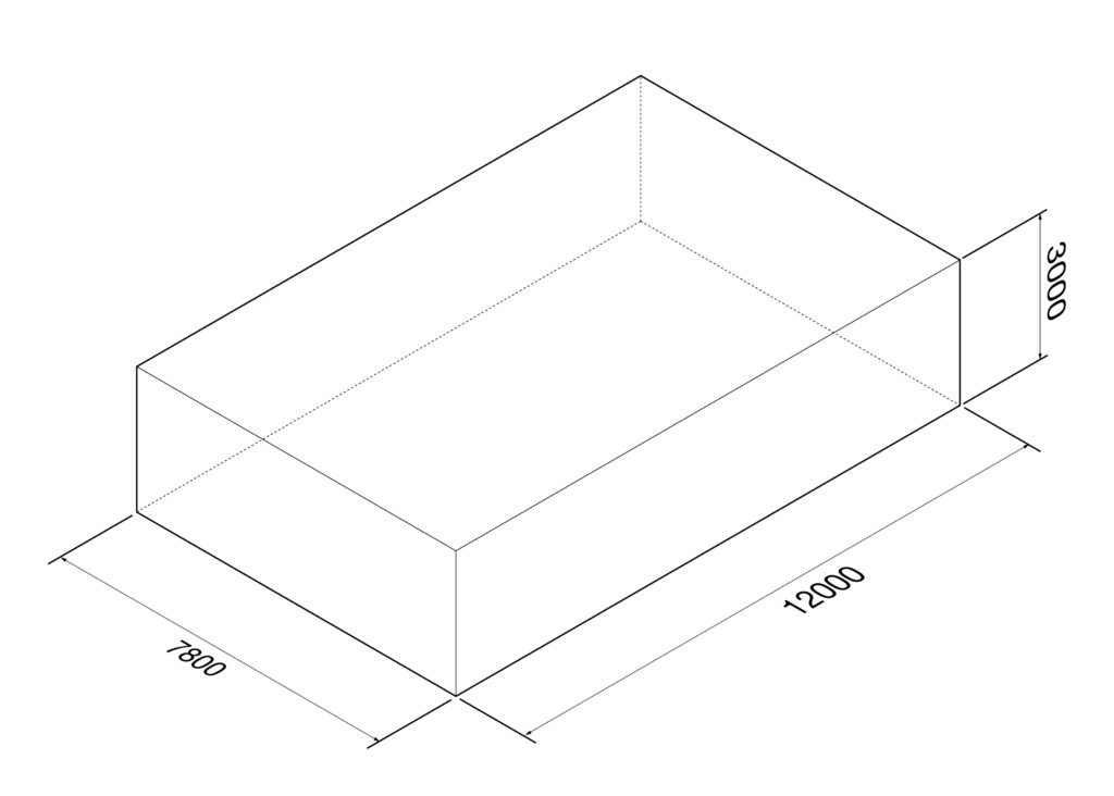
Above is a the overall dimensions of LEEDs studio using the units read by Vicon Tracker. Decreasing these bounds will insure that the object tracking is more consistent. The definition below is an example of remapping the X,Y,Z coordinates of a tracker on an object to RGB values based on the bounds of the space: Remap_XYZ_RGB